Direkt zum Inhalt
Wohnzimmer mit Blick auf die Terrasse

  • hochwertige
    Eigentumswohnungen

  •  

Wohnen & Leben in Harmonie.

Wir alle suchen einen Platz, wo wir uns zuhause fühlen. Je nach Lebensphase und -situation können die Wünsche und Ansprüche ganz unterschiedlich sein. Darum finden Sie im QUATRIUM mehr als nur Wohnungen, es sind individuelle Lebensräume: Ob Single, junges Paar, Familie oder Senioren – im QUATRIUM wartet schon ein Zuhause, das perfekt zu Ihnen passt.

Zuhause ist, wo alles passt.

In den vier annähernd gleich großen Atriumhäusern warten in Summe 102 Wohnungen auf ihre Eigentümer. In allen Häusern stehen alle Wohnungstypen, Garten-, Balkon-, Terrassen- sowie Penthousewohnungen, für Sie zur Auswahl.

Quatrium Wohnungsfakten inkl. Foto Schlafzimmer und Atrium
Quatrium Wohnungsfakten inkl. Foto Schlafzimmer und Atrium
Grundriss 2-Zimmer-Wohnungen

51

2-Zimmer-Wohnungen
ca. 50 bis 65 m2

Grundriss 3-Zimmer-Wohnung

34

3-Zimmer-Wohnungen
ca. 73 bis 78 m2

Grundriss 4-Zimmer-Wohnung

17

4-Zimmer-Wohnungen
ca. 91 bis 132 m

Geschoss Top Zimmer Nutzfläche in m² Balkon in m² Terrasse in m² Garten in m² Kellerabteil in m² Stellplätze * Kaufpreis in € Status Grundriss Kontakt
EG 01 4 103,44 - 15,77 107,21 8,58 2 499.000 frei quatrium_wohnungsdatenblatt_haus-apollo_top01-eg.pdf Kontakt
EG 02 2 51,01 - 7,99 24,82 8,58 1 255.000 frei quatrium_wohnungsdatenblatt_haus-apollo_top02_eg.pdf Kontakt
EG 03 3 78,43 - 15,77 81,98 6,20 1 383.000 frei quatrium_wohnungsdatenblatt_haus-apollo_top03_eg.pdf Kontakt
EG 04 2 49,92 - 7,99 24,82 6,39 - 250.000 frei quatrium_wohnungsdatenblatt_haus-apollo_top04_eg.pdf Kontakt
EG 05 4 103,46 - 15,77 105,16 6,39 2 493.000 frei quatrium_wohnungsdatenblatt_haus-apollo_top05_eg.pdf Kontakt
EG 06 4 103,46 - 15,77 107,43 6,39 2 493.000 frei quatrium_wohnungsdatenblatt_haus-apollo_top06_eg.pdf Kontakt
OG1 07 2 49,92 10,12 - - 6,39 - 253.000 frei quatrium_wohnungsdatenblatt_haus-apollo_top07_1og.pdf Kontakt
OG1 08 4 103,46 36,21 - - 6,39 2 499.000 frei quatrium_wohnungsdatenblatt_haus-apollo_top08_1og.pdf Kontakt
OG1 09 4 103,46 36,21 - - 6,39 2 499.000 frei quatrium_wohnungsdatenblatt_haus-apollo_top09_1og.pdf Kontakt
OG1 10 2 49,92 10,12 - - 6,39 - 253.000 frei quatrium_wohnungsdatenblatt_haus-apollo_top10_1og.pdf Kontakt
OG1 11 3 78,43 28,73 - - 5,50 1 388.000 frei quatrium_wohnungsdatenblatt_haus-apollo_top11_1og.pdf Kontakt
OG1 12 2 51,01 10,12 - - 5,50 - 258.000 frei quatrium_wohnungsdatenblatt_haus-apollo_top12_1og.pdf Kontakt
OG1 13 3 78,43 33,53 - - 6,49 2 388.000 frei quatrium_wohnungsdatenblatt_haus-apollo_top13_1og.pdf Kontakt
OG2 14 2 49,92 10,12 - - 6,33 - 256.000 frei quatrium_wohnungsdatenblatt_haus-apollo_top14_2og.pdf Kontakt
OG2 15 4 103,46 36,21 - - 6,33 2 505.000 frei quatrium_wohnungsdatenblatt_haus-apollo_top15_2og.pdf Kontakt
OG2 16 4 103,46 36,21 - - 6,39 2 505.000 frei quatrium_wohnungsdatenblatt_haus-apollo_top16_2og.pdf Kontakt
OG2 17 2 49,92 10,12 - - 6,39 - 256.000 frei quatrium_wohnungsdatenblatt_haus-apollo_top17_2og.pdf Kontakt
OG2 18 3 78,43 33,53 - - 5,76 1 392.000 frei quatrium_wohnungsdatenblatt_haus-apollo_top18_2og.pdf Kontakt
OG2 19 2 51,01 10,12 - - 7,29 1 261.000 frei quatrium_wohnungsdatenblatt_haus-apollo_top19_2og.pdf Kontakt
OG2 20 3 78,43 28,73 - - 7,21 2 392.000 frei quatrium_wohnungsdatenblatt_haus-apollo_top20_2og.pdf Kontakt
Penthouse 21 4 122,87 49,05 65,09 - 7,28 2 687.000 frei quatrium_wohnungsdatenblatt_haus-apollo_top21_penthouse.pdf Kontakt
Penthouse 22 4 119,58 69,78 68,28 - 7,28 2 676.000 frei quatrium_wohnungsdatenblatt_haus-apollo_top22_penthouse.pdf Kontakt
Penthouse 23 4 132,15 46,37 28,88 - 12,98 2 723.000 frei quatrium_wohnungsdatenblatt_haus-apollo_top23_penthouse.pdf Kontakt
Geschoss Top Zimmer Nutzfläche in m² Balkon in m² Terrasse in m² Garten in m² Kellerabteil in m² Stellplätze * Kaufpreis in € Status Grundriss Kontakt
EG 01 2 52,11 - 7,99 28,04 5,13 1 262.000 frei quatrium_wohnungsdatenblatt_haus-belisar_top01_eg.pdf Kontakt
EG 02 2 51,01 - 7,99 26,32 5,13 1 257.000 frei quatrium_wohnungsdatenblatt_haus-belisar_top02_eg.pdf Kontakt
EG 03 2 51,01 - 7,99 26,32 8,68 - 257.000 frei quatrium_wohnungsdatenblatt_haus-belisar_top03_eg.pdf Kontakt
EG 04 3 76,85 - 15,77 91,79 8,89 2 380.000 frei quatrium_wohnungsdatenblatt_haus-belisar_top04_eg.pdf Kontakt
EG 05 3 76,85 - 15,77 85,42 4,49 2 380.000 frei quatrium_wohnungsdatenblatt_haus-belisar_top05_eg.pdf Kontakt
EG 06 2 51,01 - 7,99 26,32 4,49 - 257.000 frei quatrium_wohnungsdatenblatt_haus-belisar_top06_eg.pdf Kontakt
EG 07 2 51,01 - 7,99 26,32 4,49 1 257.000 frei quatrium_wohnungsdatenblatt_haus-belisar_top07_eg.pdf Kontakt
EG 08 3 77,89 - 15,77 96,59 4,49 2 385.000 frei quatrium_wohnungsdatenblatt_haus-belisar_top08_eg.pdf Kontakt
OG1 09 3 76,85 33,53 - - 8,89 1 384.000 frei quatrium_wohnungsdatenblatt_haus-belisar_top09_1og.pdf Kontakt
OG1 10 2 51,01 10,12 - - 10,56 - 261.000 frei quatrium_wohnungsdatenblatt_haus-belisar_top10_1og.pdf Kontakt
OG1 11 2 51,01 10,12 - - 6,24 - 261.000 frei quatrium_wohnungsdatenblatt_haus-belisar_top11_1og.pdf Kontakt
OG1 12 3 77,89 28,73 - - 6,24 1 390.000 frei quatrium_wohnungsdatenblatt_haus-belisar_top12_1og.pdf Kontakt
OG1 13 3 77,89 33,53 - - 6,24 1 390.000 frei quatrium_wohnungsdatenblatt_haus-belisar_top13_1og.pdf Kontakt
OG1 14 2 51,01 10,12 - - 6,59 - 261.000 frei quatrium_wohnungsdatenblatt_haus-belisar_top14_1og.pdf Kontakt
OG1 15 2 51,01 10,12 - - 6,59 - 261.000 frei quatrium_wohnungsdatenblatt_haus-belisar_top15_1og.pdf Kontakt
OG1 16 3 76,85 28,73 - - 6,59 - 384.000 frei quatrium_wohnungsdatenblatt_haus-belisar_top16_1og.pdf Kontakt
OG2 17 3 76,85 28,73 - - 6,59 2 389.000 frei quatrium_wohnungsdatenblatt_haus-belisar_top17_2og.pdf Kontakt
OG2 18 2 51,01 10,12 - - 10,08 - 267.000 frei quatrium_wohnungsdatenblatt_haus-belisar_top18_2og.pdf Kontakt
OG2 19 2 51,01 10,12 - - 4,40 - 267.000 frei quatrium_wohnungsdatenblatt_haus-belisar_top19_2og.pdf Kontakt
OG2 20 3 77,89 33,53 - - 4,40 2 394.000 frei quatrium_wohnungsdatenblatt_haus-belisar_top20_2og.pdf Kontakt
OG2 21 3 77,89 28,73 - - 4,40 2 394.000 frei quatrium_wohnungsdatenblatt_haus-belisar_top21_2og.pdf Kontakt
OG2 22 2 51,01 10,12 - - 4,40 - 267.000 frei quatrium_wohnungsdatenblatt_haus-belisar_top22_2og.pdf Kontakt
OG2 23 2 51,01 10,12 - - 4,40 - 267.000 frei quatrium_wohnungsdatenblatt_haus-belisar_top23_2og.pdf Kontakt
OG2 24 3 76,85 33,53 - - 4,40 2 389.000 frei quatrium_wohnungsdatenblatt_haus-belisar_top24_2og.pdf Kontakt
Penthouse 25 4 128,43 46,37 28,50 - 11,90 2 714.000 frei quatrium_wohnungsdatenblatt_haus-belisar_top25_penthouse.pdf Kontakt
Penthouse 26 4 103,66 38,89 28,50 - 4,67 2 577.000 frei quatrium_wohnungsdatenblatt_haus-belisar_top26_penthouse.pdf Kontakt
Penthouse 27 2 51,65 33,53 28,69 - 4,67 1 287.000 frei quatrium_wohnungsdatenblatt_haus-belisar_top27_penthouse.pdf Kontakt
Penthouse 28 4 132,29 46,37 28,88 - 4,67 2 736.000 frei quatrium_wohnungsdatenblatt_haus-belisar_top28_penthouse.pdf Kontakt
Geschoss Top Zimmer Nutzfläche in m² Balkon in m² Terrasse in m² Garten in m² Kellerabteil in m² Stellplätze * Kaufpreis in € Status Grundriss Kontakt
EG 01 3 78,44 - 15,77 87,73 3,88 1 388.000 frei quatrium_wohnungsdatenblatt_haus-carna_top01_eg.pdf Kontakt
EG 02 3 73,13 - 7,99 41,92 3,88 1 366.000 frei quatrium_wohnungsdatenblatt_haus-carna_top02_eg.pdf Kontakt
EG 03 3 77,32 - 7,99 42,14 5,68 1 389.000 frei quatrium_wohnungsdatenblatt_haus-carna_top03_eg.pdf Kontakt
EG 04 4 103,44 - 15,77 103,55 5,68 2 511.000 frei quatrium_wohnungsdatenblatt_haus-carna_top04_eg.pdf Kontakt
OG1 05 3 78,43 33,53 - - 6,52 1 402.000 frei quatrium_wohnungsdatenblatt_haus-carna_top05_1og.pdf Kontakt
OG1 06 2 51,01 10,12 - - 7,06 - 255.000 frei quatrium_wohnungsdatenblatt_haus-carna_top06_1og.pdf Kontakt
OG1 07 3 78,43 28,73 - - 7,06 1 402.000 frei quatrium_wohnungsdatenblatt_haus-carna_top07_1og.pdf Kontakt
OG1 08 2 49,92 10,12 - - 7,06 - 250.000 frei quatrium_wohnungsdatenblatt_haus-carna_top08_1og.pdf Kontakt
OG1 09 3 78,43 28,73 - - 6,62 1 402.000 frei quatrium_wohnungsdatenblatt_haus-carna_top09_1og.pdf Kontakt
OG1 10 2 64,79 12,80 - - 6,62 1 326.000 frei quatrium_wohnungsdatenblatt_haus-carna_top10_1og.pdf Kontakt
OG1 11 2 60,51 21,25 - - 6,62 - 304.000 frei quatrium_wohnungsdatenblatt_haus-carna_top11_1og.pdf Kontakt
OG1 12 2 49,92 10,12 - - 6,11 - 250.000 frei quatrium_wohnungsdatenblatt_haus-carna_top12_1og.pdf Kontakt
OG2 13 2 49,92 10,12 - - 6,29 - 261.000 frei quatrium_wohnungsdatenblatt_haus-carna_top13_2og.pdf Kontakt
OG2 14 3 78,46 28,73 - - 6,56 1 397.000 frei quatrium_wohnungsdatenblatt_haus-carna_top14_2og.pdf Kontakt
OG2 15 2 51,01 10,12 - - 5,94 - 267.000 frei quatrium_wohnungsdatenblatt_haus-carna_top15_2og.pdf Kontakt
OG2 16 3 78,43 33,53 - - 5,94 1 397.000 frei quatrium_wohnungsdatenblatt_haus-carna_top16_2og.pdf Kontakt
OG2 17 2 49,92 10,12 - - 6,62 - 261.000 frei quatrium_wohnungsdatenblatt_haus-carna_top17_2og.pdf Kontakt
OG2 18 3 78,43 28,73 - - 8,41 1 399.000 frei quatrium_wohnungsdatenblatt_haus-carna_top18_2og.pdf Kontakt
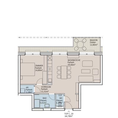
OG2 19 2 64,78 12,80 - - 4,84 1 330.000 frei quatrium_wohnungsdatenblatt_haus-carna_top19_2og.pdf Kontakt
OG2 20 2 60,51 26,05 - - 4,84 - 308.000 frei quatrium_wohnungsdatenblatt_haus-carna_top20_2og.pdf Kontakt
Penthouse 21 4 130,93 46,37 28,69 - 4,29 2 728.000 frei quatrium_wohnungsdatenblatt_haus-carna_top21_penthouse.pdf Kontakt
Penthouse 22 4 90,66 38,89 42,75 - 6,02 2 510.000 frei quatrium_wohnungsdatenblatt_haus-carna_top22_penthouse.pdf Kontakt
Penthouse 23 2 51,83 28,73 28,69 - 6,02 1 288.000 frei quatrium_wohnungsdatenblatt_haus-carna_top23_penthouse.pdf Kontakt
Penthouse 24 4 126,75 41,57 28,69 - 6,02 2 705.000 frei quatrium_wohnungsdatenblatt_haus-carna_top24_penthouse.pdf Kontakt
EG Ordination 159,25 - - - 21,65 3 672.000 frei quatrium_ordinationsdatenblatt_haus-carna_topa_eg.pdf Kontakt
Geschoss Top Zimmer Nutzfläche in m² Balkon in m² Terrasse in m² Garten in m² Kellerabteil in m² Stellplätze * Kaufpreis in € Status Grundriss Kontakt
EG 01 3 77,89 - 15,77 87,94 5,25 1 380.000 frei quatrium_wohnungsdatenblatt_haus-diana_top01_eg.pdf Kontakt
EG 02 2 51,01 - 7,99 24,07 5,25 - 255.000 frei quatrium_wohnungsdatenblatt_haus-diana_top02_eg.pdf Kontakt
EG 03 2 51,01 - 7,99 25,68 5,25 - 255.000 frei quatrium_wohnungsdatenblatt_haus-diana_top03_eg.pdf Kontakt
OG1 04 3 75,73 28,73 - - 6,99 1 374.000 frei quatrium_wohnungsdatenblatt_haus-diana_top04_1og.pdf Kontakt
OG1 05 2 51,01 10,12 - - 6,29 - 258.000 frei quatrium_wohnungsdatenblatt_haus-diana_top05_1og.pdf Kontakt
OG1 06 2 51,01 10,12 - - 5,25 1 258.000 frei quatrium_wohnungsdatenblatt_haus-diana_top06_1og.pdf Kontakt
OG1 07 3 77,89 33,53 - - 5,25 1 385.000 frei quatrium_wohnungsdatenblatt_haus-diana_top07_1og.pdf Kontakt
OG1 08 3 77,89 23,93 - - 5,25 - 385.000 frei quatrium_wohnungsdatenblatt_haus-diana_top08_1og.pdf Kontakt
OG1 09 2 51,01 10,12 - - 5,25 - 258.000 frei quatrium_wohnungsdatenblatt_haus-diana_top09_1og.pdf Kontakt
OG1 10 2 51,01 10,12 - - 5,33 - 258.000 frei quatrium_wohnungsdatenblatt_haus-diana_top10_1og.pdf Kontakt
OG1 11 3 75,73 33,53 - - 5,33 1 374.000 frei quatrium_wohnungsdatenblatt_haus-diana_top11_1og.pdf Kontakt
OG2 12 3 75,73 33,55 - - 5,33 1 379.000 frei quatrium_wohnungsdatenblatt_haus-diana_top12_2og.pdf Kontakt
OG2 13 2 51,01 10,14 - - 5,33 - 261.000 frei quatrium_wohnungsdatenblatt_haus-diana_top13_2og.pdf Kontakt
OG2 14 2 51,01 10,14 - - 4,79 1 261.000 frei quatrium_wohnungsdatenblatt_haus-diana_top14_2og.pdf Kontakt
OG2 15 3 77,89 23,95 - - 5,33 2 390.000 frei quatrium_wohnungsdatenblatt_haus-diana_top15_2og.pdf Kontakt
OG2 16 3 77,89 33,51 - - 5,33 1 390.000 frei quatrium_wohnungsdatenblatt_haus-diana_top16_2og.pdf Kontakt
OG2 17 2 51,01 10,10 - - 5,33 1 261.000 frei quatrium_wohnungsdatenblatt_haus-diana_top17_2og.pdf Kontakt
OG2 18 2 51,01 10,10 - - 7,36 - 261.000 frei quatrium_wohnungsdatenblatt_haus-diana_top18_2og.pdf Kontakt
OG2 19 3 75,73 28,71 - - 8,42 1 379.000 frei quatrium_wohnungsdatenblatt_haus-diana_top19_2og.pdf Kontakt
Penthouse 20 2 58,81 28,75 18,63 - 4,72 1 336.000 frei quatrium_wohnungsdatenblatt_haus-diana_top20_penthouse.pdf Kontakt
Penthouse 21 2 51,01 10,14 - - 4,72 1 285.000 frei quatrium_wohnungsdatenblatt_haus-diana_top21_penthouse.pdf Kontakt
Penthouse 22 2 51,01 10,14 - - 4,72 1 285.000 frei quatrium_wohnungsdatenblatt_haus-diana_top22_penthouse.pdf Kontakt
Penthouse 23 2 61,12 33,54 18,63 - 4,16 1 342.000 frei quatrium_wohnungsdatenblatt_haus-diana_top23_penthouse.pdf Kontakt
Penthouse 24 2 61,12 23,92 18,64 - 6,29 1 342.000 frei quatrium_wohnungsdatenblatt_haus-diana_top24_penthouse.pdf Kontakt
Penthouse 25 2 51,01 10,10 - - 6,29 1 285.000 frei quatrium_wohnungsdatenblatt_haus-diana_top25_penthouse.pdf Kontakt
Penthouse 26 2 51,01 10,10 - - 6,29 1 285.000 frei quatrium_wohnungsdatenblatt_haus-diana_top26_penthouse.pdf Kontakt
Penthouse 27 2 58,81 33,51 18,66 - 6,29 1 336.000 frei quatrium_wohnungsdatenblatt_haus-diana_top27_penthouse.pdf Kontakt
EG Büro 155,30 - - - 26,27 2 656.000 frei quatrium_buerodatenblatt_haus-diana_topa_eg.pdf Kontakt
EG Büro 160,20 - - - 27,79 2 676.000 frei quatrium_buerodatenblatt_haus-diana_topb_eg.pdf Kontakt


* € 25.000 Tiefgaragenstellplatz
* € 27.500 Tiefgaragenstellplatz barrierefrei

Finden Sie Ihre Lifebalance im Quatrium!
Jetzt unverbindlich eine Wohnung anfragen!

Wir freuen uns, dass wir Sie für QUATRIUM begeistern konnten! Kontaktieren Sie uns bitte über das untenstehende Kontaktformular, oder rufen Sie eine:n unserer Berater:innen an – wir setzen uns umgehend mit Ihnen in Verbindung. Im persönlichen Gespräch erzählen wir Ihnen gerne mehr über die Vorzüge dieses modernen Kärntner Wohnbauprojektes und die noch verfügbaren Wohnungen.

 

*Pflichtfelder
Ja, ich bin damit einverstanden, dass meine Daten zum Zwecke der Bearbeitung der Anfrage gespeichert und weiterverarbeitet werden. Weitere Informationen finden Sie in unserer Datenschutzerklärung.*